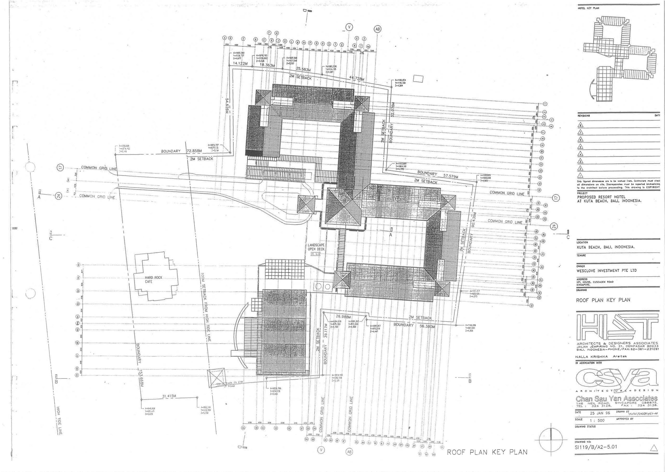
INVOLVED PROJECT IN BALI SINCE 1996 FOR BALI CONCORDE BEACH RESORT / KUTA HARD ROCK CAFE & HOTEL FOR HYUNDAI – BOOSUNG